Timbavati

£1,450,000

Route des Laurens, Torteval GY8 0RH

  • Local Market
  • Sole Agent
  • Under Offer

A stunning recently renovated family home with uninterrupted south coast sea views.

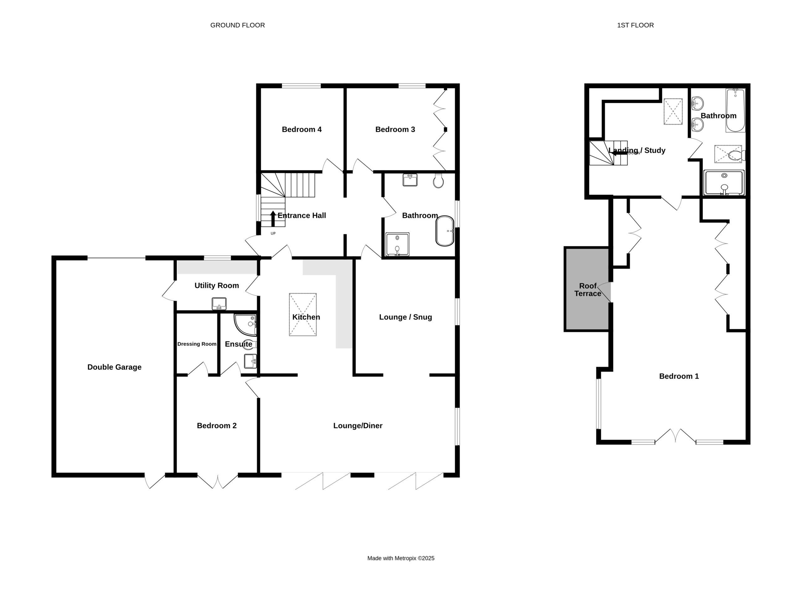
This beautifully renovated and extended four-bedroom family home offers the perfect blend of space and versatility featuring a stylish kitchen, bright lounge diner and separate further living room – perfect for entertaining. Four bedrooms continue the contemporary finish throughout, serviced by two bathrooms and an en-suite. A dedicated study area on the landing provides space for working from home.

Externally, a garage and ample parking are positioned to the front and to the rear, an expanse of lawned garden boasting uninterrupted sea views. 

  • Immaculate family home
  • 4 bedrooms and ample living space
  • Recently renovated and extended
  • Desirable location with beautiful views
  • Large garden
  • Parking and garage
  • Torteval
  • La Houguette Primary, Les Beaucamps High School

Torteval is in two parts, although only 100 feet apart at Rue de L’Aitte. It includes Pleinmont Point, a favourite walk beginning at the quaint harbour of Portelet. The higher ground is Guernsey’s equivalent to Land’s End and the start, or end, of the spectacular south-coast network of cliff paths.

The sandy stretch of Rocquaine Bay and its regatta shared with St Peter’s are mentioned above, but Torteval’s great attraction is the Scarecrow Festival, annually drawing in 8,000 people over two days, strolling through the patchwork of scenic lanes near the parish church.

There is space aplenty throughout the parish, due to the relatively low ratio of houses, and demand is high. Some buyers say it’s too far out, which, for others, is what makes Torteval special.

Read our parish guide
  • 4
  • 3
  • 2
Buy this property for £6,306pcm*
*Typical monthly repayment is an estimate for guidance only. Calculation is based on an interest rate of 5.6%, 20% deposit over a 35 year period.

Local Market Team