Honeysuckle

£925,000

11 Pre de la Cotte, Route du Coucher du Soleil, Castel GY5 7YZ

  • Local Market
  • Sole Agent
  • Under Offer

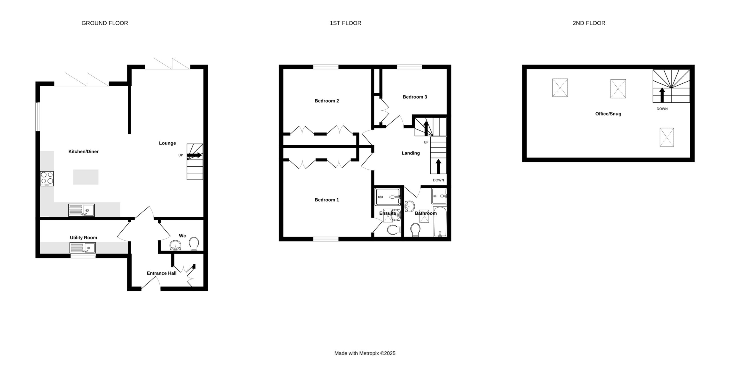
An immaculate three bedroom family home, built in 2020, situate on a quiet clos near to Cobo Bay.

This stunning semi detached property offers contemporary and spacious accommodation throughout and is positioned just a short distance from the Cobo village amenities and all that the West coast has to offer.

‘Honeysuckle’ features a bright and spacious open plan kitchen, lounge and dining area, a utility plus three bedrooms serviced by a family bathroom, separate WC and en-suite to the main bedroom. There is a further study/family room located on the second floor.

Further benefitting from an enclosed rear garden and patio plus parking for 3-4 vehicles, early viewing is highly recommended to appreciate all on offer.

  • Immaculate family home
  • Stunning open plan kitchen living space
  • 3 bedrooms plus separate office / family room
  • Parking for 3-4 cars
  • Enclosed garden and patio
  • Castel
  • La Mare De Carteret Primary, St Sampsons High School

Guernsey’s largest parish geographically and family-friendly at heart, with safe sandy beaches and leafy Saumarez Park, home to summer festivals, the National Trust of Guernsey’s Folk Museum and children’s adventure playground.

The near-legendary fish and chips on the sea wall watching stunning sunsets is as good as it sounds, shared by more formal west-coast dining, if preferred.

There are wide tracks of green-belt land, especially at Talbot Valley and nearby Fauxquets Valley, and an eclectic mix of housing styles and densities. This includes clusters of fine old farmhouses, notably in the hamlet of Kings Mills, although modern architecture is increasingly popular, especially when replacing 20th century buildings. The proposed redevelopment of La Grande Mare Golf Club to international status is affirmation of Castel’s inherent appeal.

Read our parish guide
  • 3
  • 2
  • 2
Buy this property for £4,023pcm*
*Typical monthly repayment is an estimate for guidance only. Calculation is based on an interest rate of 5.6%, 20% deposit over a 35 year period.

Local Market Team