Rue de L'Arquet, St Saviour's GY7 9NE
Beautifully positioned on a quiet lane in St Saviours, just moments from Perelle Bay, this substantial 15th century listed farmhouse offers a discerning buyer a super opportunity to create a truly impressive home.
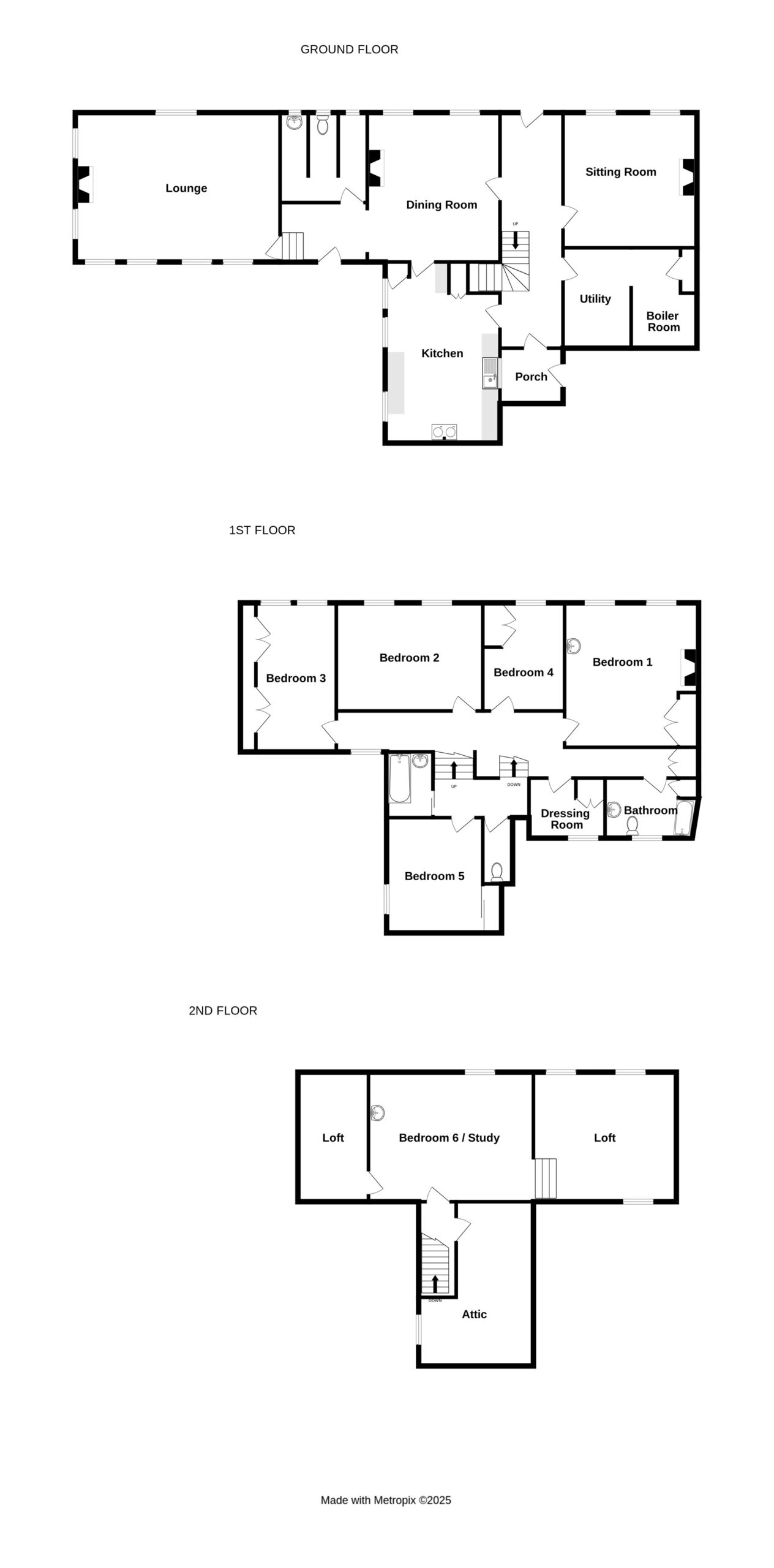
Comprising up to seven bedrooms over three floors, Les Rouvets boasts character filled accommodation throughout. Further to the main house, there is a number of outbuildings including a two bedroom local market flat.
Set within generous grounds, the property also features a swimming pool with dedicated pool house as well as an area of agricultural land across the lane.
Although requiring full renovation throughout, viewing is recommended to appreciate the scope and possibilities on offer.

Farming has been at the heart of St Saviour’s for centuries. The parish is blessed with great swathes of lush pasture and sheltered valleys descending onto a westerly coastline. Three of the valleys were flooded to form the island’s reservoir, around which the millennium walk takes an hour or so to complete.
St Saviour’s church and community centre are the focal points for parishioners and regular events often attract island-wide attention, such as the church’s annual music festival and revelry. Hotels and restaurants in the parish are few, but good.
The many fine farmhouses in St Saviour’s, some dating from the 17th century, are evidence of the parish’s inherent prosperity, and new development has been sparse giving rise to premium house prices as demand is high.
Read our parish guide