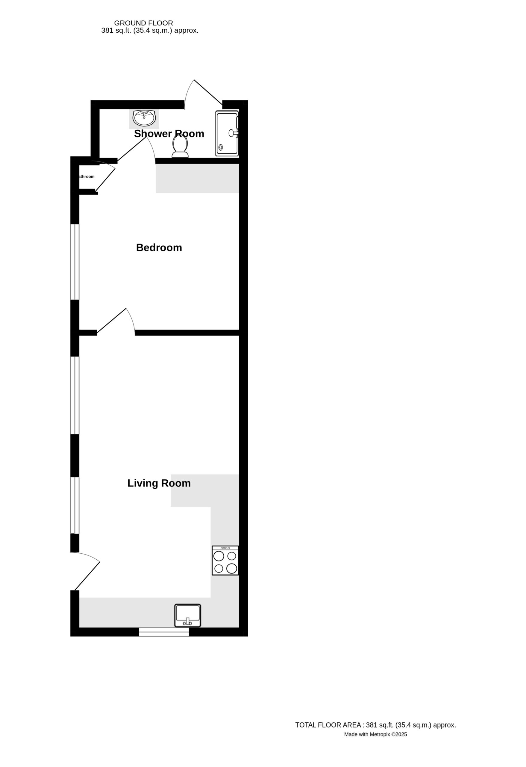
The Wing, Longfrie House

£1,600 pcm

Rue du Longfrie, St Pierre du Bois GY7 9RZ

  • Local Market
  • Sole Agent

A charming 1 bedroom wing, tastefully decorated and ideally placed for St Peter’s village amenities.

There is a small enclosed courtyard at the rear, accessed from the shower room. On-street parking is available on the road.
A lovely bright wing ideally suited to a single person. Available from mid January 2026

  • Lovely bright 1 bedroom wing
  • Fully furnished & tastefully decorated
  • Small courtyard space
  • Parking available close by
  • Regret no pets, smokers or sharers.
  • St Pierre du Bois
  • La Houguette Primary, Les Beaucamps High School

Step back a pace into rural St Peter’s, where the family next door will have owned the same house for generations. Tradition and the beauty of these houses go some way to explain why, and strict planning measures allow limited opportunity for new residents wanting to share this sylvan idyll.

St Peter’s has two coastlines – dramatic high cliffs to the South, with an exceptional stretch of the cliff-path network, and sandy beaches to the West that, with Torteval, host the annual Rocquaine Regatta (Henley, it’s not!). At the far end of L’Eree beach is the tidal island of Lihou and the adjacent nature reserve that form Guernsey’s first RAMSAR site. Also hereabouts are the showground fields for the annual two-day West Show, an agricultural and side-show extravaganza.

Read our parish guide

Rentals Team