Rue de la Croute, St Pierre du Bois GY7 9DY
This detached home enjoys lovely views from an elevated position out towards Lihou headland and is positioned on a tranquil lane in the desirable parish of St Pierre du Bois.
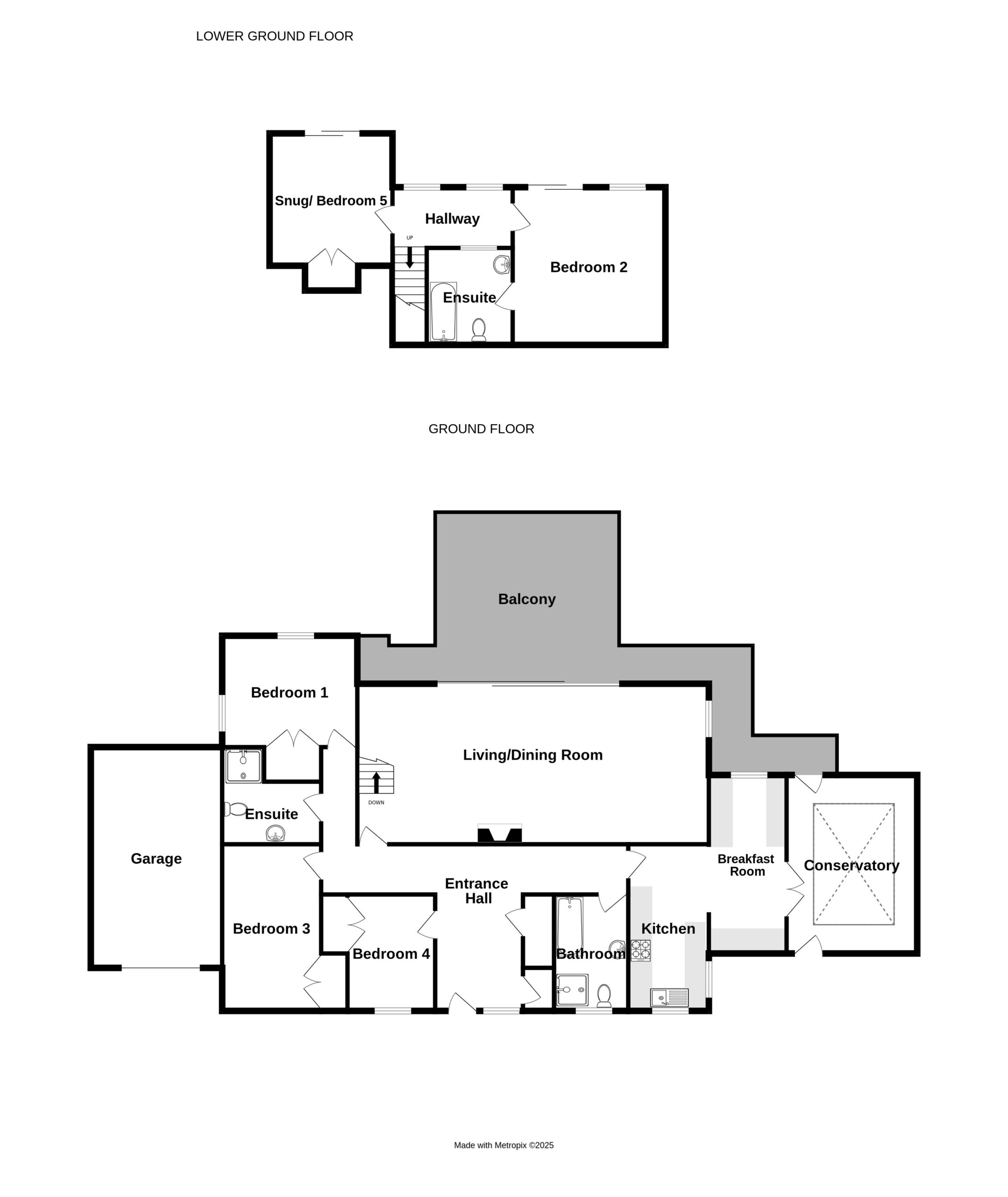
The ground floor accommodation comprises three bedrooms, served by two bath/shower rooms, together with a kitchen/breakfast room, conservatory, and a large living/dining room which opens out to a decked area enjoying the vista. The lower ground floor offers a snug, which could be used as an additional bedroom, and a further bedroom with en-suite bathroom.
Planning permission was previously granted to extend at first floor level and alter the ground floor, giving a discerning purchaser the opportunity to explore this route again, should they wish.
With ample parking, a garage, gardens, copse land and a meadow, viewing is highly recommended to appreciate all that Cornerways has to offer.
Step back a pace into rural St Peter’s, where the family next door will have owned the same house for generations. Tradition and the beauty of these houses go some way to explain why, and strict planning measures allow limited opportunity for new residents wanting to share this sylvan idyll.
St Peter’s has two coastlines – dramatic high cliffs to the South, with an exceptional stretch of the cliff-path network, and sandy beaches to the West that, with Torteval, host the annual Rocquaine Regatta (Henley, it’s not!). At the far end of L’Eree beach is the tidal island of Lihou and the adjacent nature reserve that form Guernsey’s first RAMSAR site. Also hereabouts are the showground fields for the annual two-day West Show, an agricultural and side-show extravaganza.
Read our parish guide