L’Aumone House Barn – Winter Let

£1,600 pcm

L’Aumone, Castel GY5 7RW

  • Local Market
  • Sole Agent
  • Let Agreed

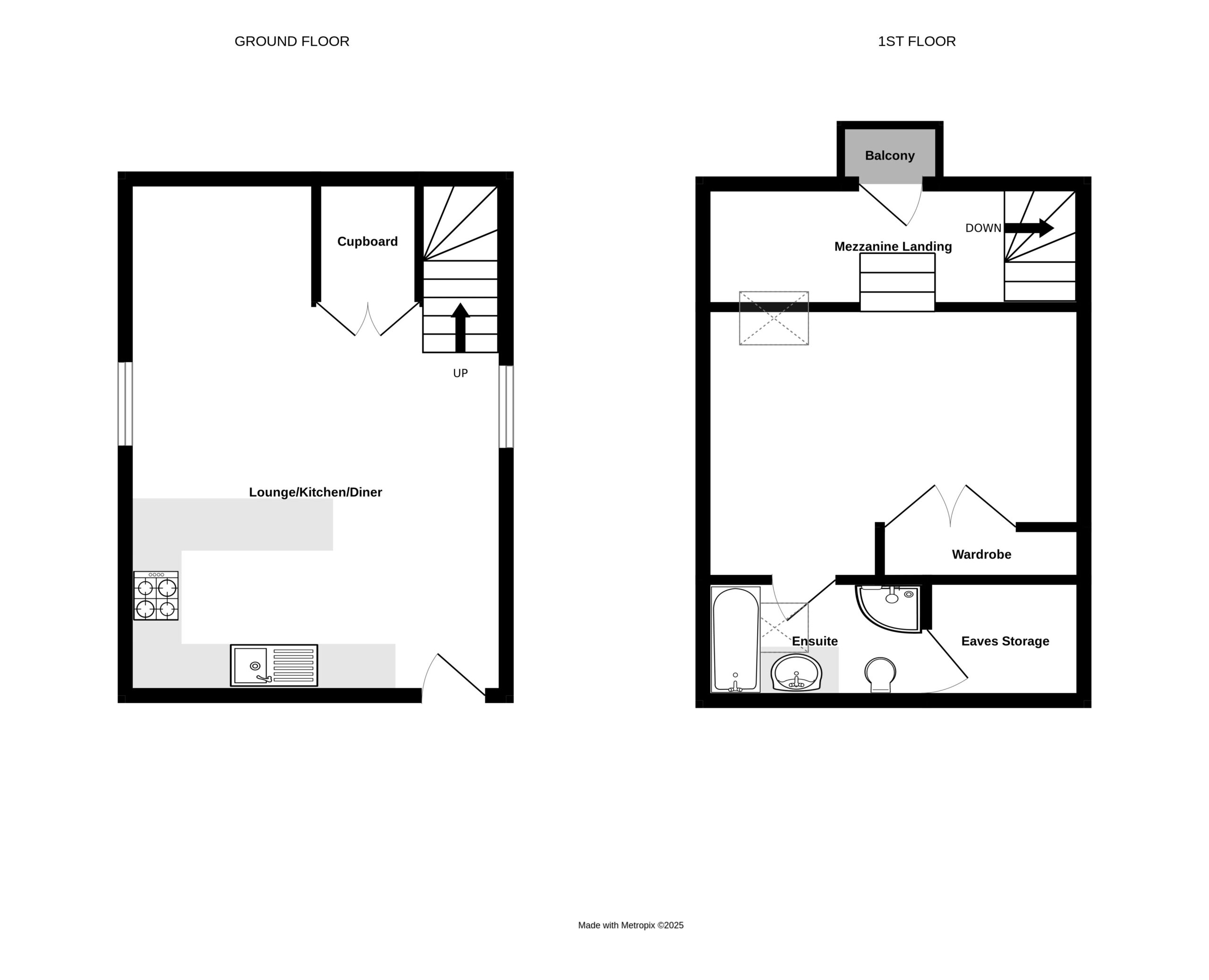
This charming, detached cottage is offered fully furnished and equipped, making it ideal for a comfortable short-term stay on a three-month lease.

The property features a patio exclusively for the barn’s use. Wi-Fi, utilities, and parking are all included. Available from January through to March/April.

  • Charming Detached Cottage
  • Offered fully furnished and equipped on a short term 3 month lease
  • Patio for the barns sole use
  • Inclusive of Wi- Fi, utilities and parking.
  • Available from January until March/April
  • Castel

Guernsey’s largest parish geographically and family-friendly at heart, with safe sandy beaches and leafy Saumarez Park, home to summer festivals, the National Trust of Guernsey’s Folk Museum and children’s adventure playground.

The near-legendary fish and chips on the sea wall watching stunning sunsets is as good as it sounds, shared by more formal west-coast dining, if preferred.

There are wide tracks of green-belt land, especially at Talbot Valley and nearby Fauxquets Valley, and an eclectic mix of housing styles and densities. This includes clusters of fine old farmhouses, notably in the hamlet of Kings Mills, although modern architecture is increasingly popular, especially when replacing 20th century buildings. The proposed redevelopment of La Grande Mare Golf Club to international status is affirmation of Castel’s inherent appeal.

Read our parish guide

Rentals Team