Leafy Cove

£1,350,000

La Garenne, Grand Havre, Vale GY3 5SG

  • Local Market
  • Sole Agent

A rare opportunity to acquire Leafy Cove, a substantial coastal development site set in one of the island’s most sought after bays, with far reaching sea views and full planning permission in place until September 2026.

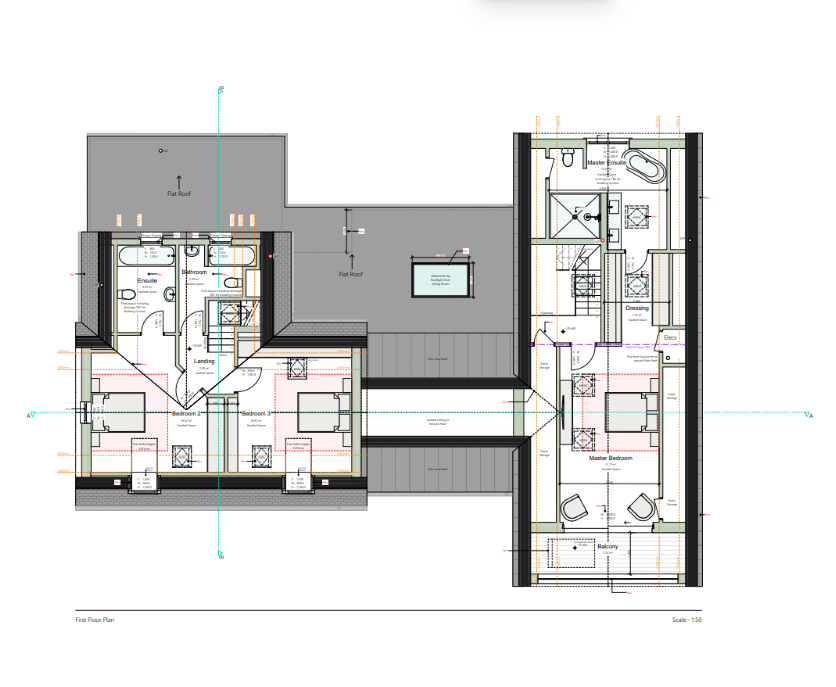
The approved plans are for a high-quality four-bedroom detached home, with each bedroom benefiting from its own en suite. The design has been carefully developed to complement the coastal setting, using materials such as granite, render, zinc, and reclaimed stone from the original cottage. The ground floor features expansive open-plan living spaces with large glazing to maximise natural light and create a strong connection to the outdoors, including a vaulted dining area, spacious kitchen, and multiple reception areas.

The plot has already been cleared, with original materials salvaged for reuse, and planning permission is in place with scope for future adaptations, subject to consent.

  • 0.4 acre private coastal plot
  • Plans approved for brand new home
  • Planning permission in place until September '26
  • Four bedrooms all en suite
  • Sea views
  • Garaging and ample parking
  • Reclaimed stone features available
  • Vale

The ancient names of Le Clos du Valle and Vale Vingtaine de l’Epine remain on record but they are administered as one and jointly called Vale.

The parish offers wide sandy beaches and surfing at Portinfer, two fishing harbours at Grande Harve, a marina at Beaucette and horseshoe harbour at Bordeaux. There is a Royal 18-hole links course within extensive common land that also has a competition-standard rifle range.

Vale and its former abbey found favour with William the Conqueror and his father before him, whose storm-torn ship found safety at L’Ancresse (the anchorage). Wealth and industry have long since been Vale’s bywords, displayed in numerous 17th- and 18th-century farmhouses, pretty cottages and vast Victorian villas in an inland maze of lanes.

Read our parish guide
  • 4
  • 4
  • 3
Buy this property for £5,871pcm*
*Typical monthly repayment is an estimate for guidance only. Calculation is based on an interest rate of 5.6%, 20% deposit over a 35 year period.

Local Market Team