6 Galleries du Manoir

£1,750 pcm

Les Camps du Moulin, St Martin's GY4 6DA

  • Local Market
  • Sole Agent
  • Let Agreed

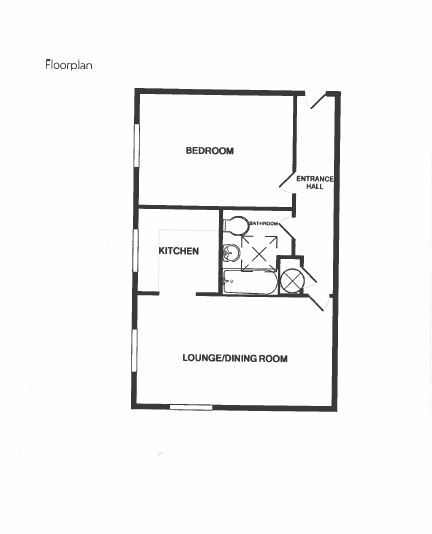
This deceptively spacious apartment is located conveniently for St Martin’s village and its amenities.

The property offers a large lounge/dining room with plenty of natural light and benefits from a newly renovated kitchen and bathroom and new carpets throughout. Ideal single or professional couples property.

  • Large lounge/dining room with plenty of natural light
  • Close to St Martins amenities
  • Regret no smokers or pets
  • Available immediately
  • St Martin's

Jerbourg Point marks St Martin’s and Guernsey’s south-east corner with panoramic views across to neighbouring islands. Fermain Bay was a favourite of Victor Hugo’s, and Pierre-Auguste Renoir captured Moulin Huet in fifteen of his paintings.

Cliff paths and green lanes provide excellent walks and Sausmarez Manor is a resplendent Queen Anne house, with regular events in its grounds. There are good family amenities, excellent hotels, restaurants and pubs, plus a M&S food hall for home dining. This is a sought-after location with a vibrant parish centre and housing market to match.

At the gateway to St Martin’s parish church stands La Gran’mère du Chimquière (the grandmother of the churchyard), where present-day brides often adorn the pagan statue-menhir (c.2500BC) with a floral headdress.

Read our parish guide

Rentals Team