Tamarind Cove

£3,100 pcm

Les Nouettes, Forest GY8 0EB

  • Local Market
  • Joint Agent
  • Let Agreed

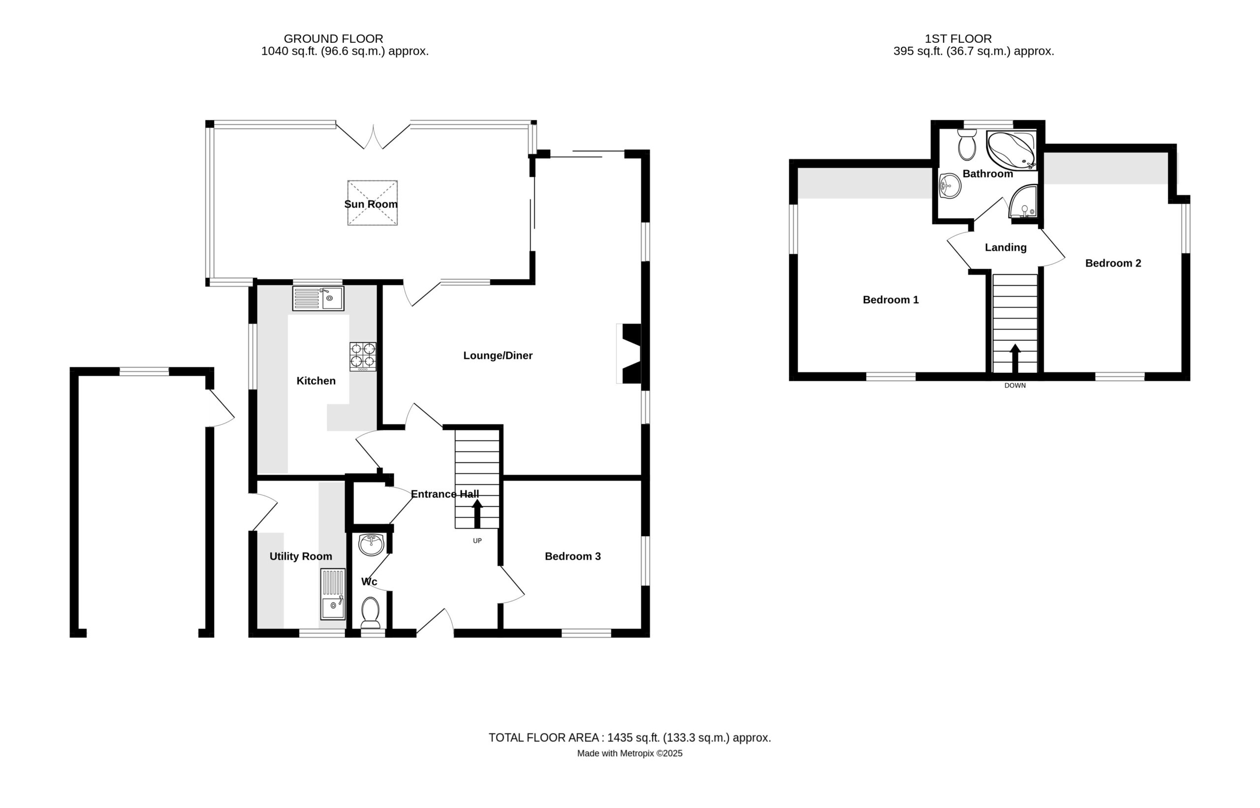
A spacious three-bedroom detached family home, set in the peaceful lanes of the Forest and within easy walking distance of local amenities and the primary school.

The property offers well-proportioned living accommodation, including three bedrooms and a bright, spacious sunroom.
Externally, there are attractive gardens, parking, and a garage.
A low-maintenance home in a convenient and desirable location.

  • Detached 3 bedroom family home
  • Single garage and ample parking
  • Spacious accommodation
  • Available immediately
  • Forest
  • Forest Primary, Les Beaucamps High School

Formerly known as Trinity, Forest takes its name from its once densely-wooded habitat. The parish is the highest in the island and includes dramatic parts of Guernsey’s south-coast network of cliff paths, best accessed from Le Gouffre. There is a honeycomb of hedge-lined lanes and an enchanting valley down to Petit Bôt Bay, with the charming hamlet of Le Variouf above.

The German Occupation Museum near the parish church is as much for locals as it is visitors, and the family-owned Forest Stores is delightfully retrospective, yet a must for the island’s best family kitchens. The community spirited and award-winning Forest Floral Group is tireless in enhancing the parish they see as a gateway to the island, in the form of Guernsey’s modern airport.

Read our parish guide

Rentals Team