La Porte Cottage

£2,000 pcm

La Grande Lande, St Saviour's GY7 9YZ

  • Local Market
  • Sole Agent

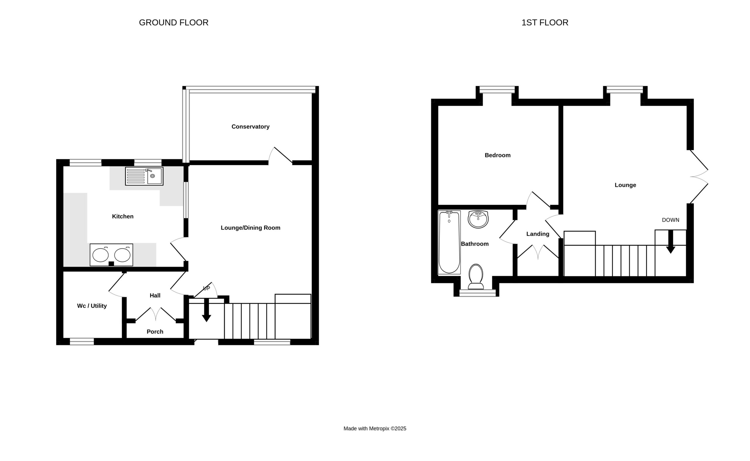
A charming semi-detached 1 bedroomed country cottage that has recently been upgraded and provides comfortable and spacious living accommodation.

Externally there is parking for 2 cars and a very private south-west facing garden.
Fully furnished. Available mid January. Regret no smokers, sharers or pets

  • Charming 1 bed cottage
  • New kitchen
  • Conservatory, lounge and dining room
  • Private garden and parking 2 cars
  • Regret no smokers, sharers or pets
  • St Saviour's

Farming has been at the heart of St Saviour’s for centuries. The parish is blessed with great swathes of lush pasture and sheltered valleys descending onto a westerly coastline. Three of the valleys were flooded to form the island’s reservoir, around which the millennium walk takes an hour or so to complete.

St Saviour’s church and community centre are the focal points for parishioners and regular events often attract island-wide attention, such as the church’s annual music festival and revelry. Hotels and restaurants in the parish are few, but good.

The many fine farmhouses in St Saviour’s, some dating from the 17th century, are evidence of the parish’s inherent prosperity, and new development has been sparse giving rise to premium house prices as demand is high.

Read our parish guide

Rentals Team