8, Allanson Court

£885,000

Les Bas Courtils Road, St Sampson's GY2 4BP

  • Local Market

Allanson Court is a stunning new development ideally located between the vibrant amenities of St Peter Port, Admiral Park, and The Bridge.

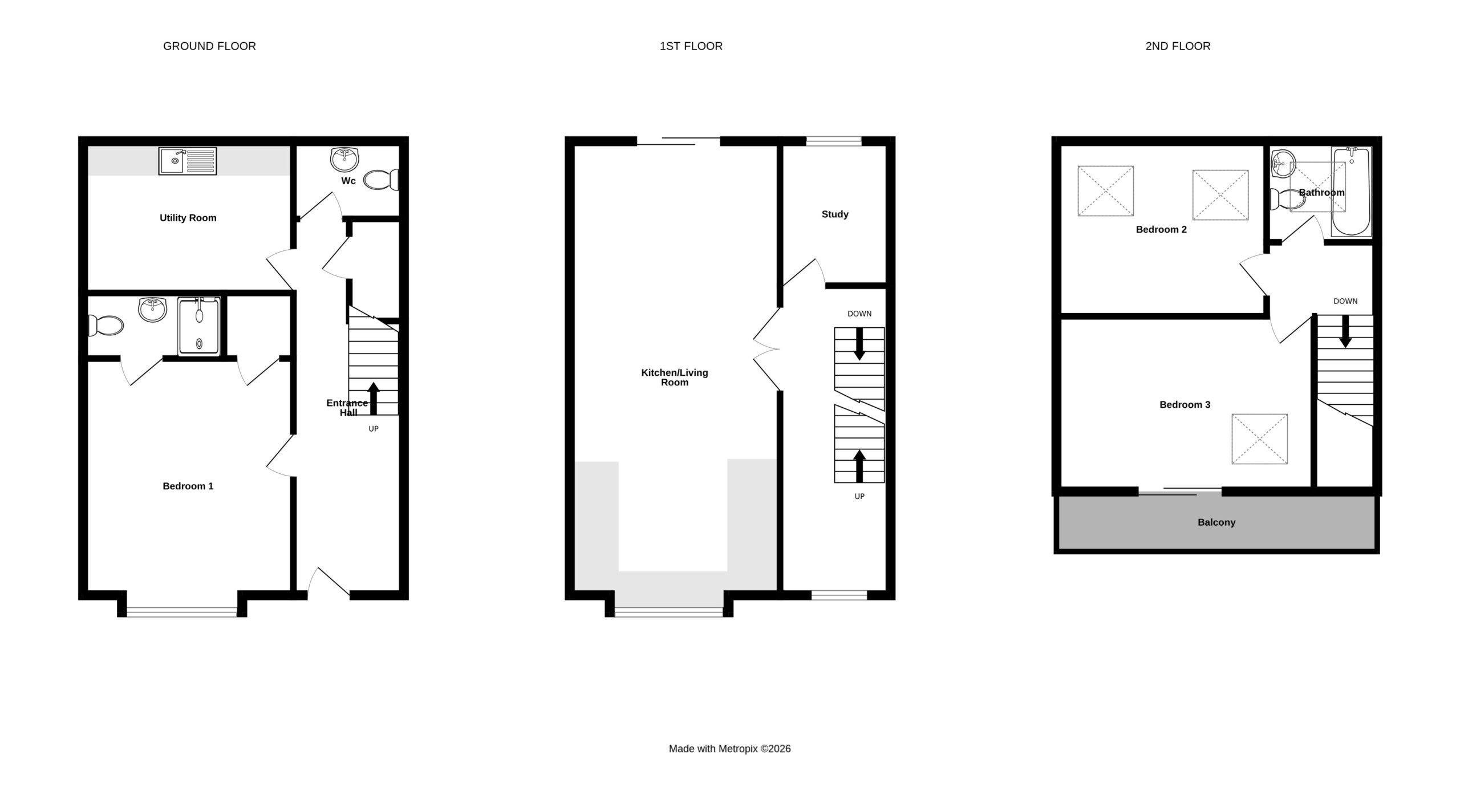
Recently built by a respected local developer, this stylish, contemporary semi-detached home comprises three generously sized bedrooms; main bedroom en-suite on the ground floor with two further bedrooms on the second floor, one of which benefits from a balcony with sea views.

An open-plan kitchen and living area, separate WC, study and a practical utility room complete the offering. Each unit is further enhanced with allocated parking for two, communal bike storage and private patios and gardens, offering the perfect blend of convenience and modern living.

  • Contemporary finishes throughout
  • 3 bedrooms
  • Separate study
  • Open plan kitchen / living space
  • Two allocated parking spaces
  • Patio and garden
  • St Sampson's
  • St Sampsons High School, Vale Primary

Industries have thrived in St Sampson’s, but its busy harbour is loosening its blue collar as alternative forms of energy are introduced and cloud-based industries take over. Private leisure boats moor in a marina where coal and timber were once shipped ashore and planners have earmarked the island’s second town for rejuvenation.

Delancey Park is its highpoint and L’Islet shows another side of the parish with a sandy beach and shops, including M&S food hall.

A smaller, detached section of St Sampson’s lies on the northwest coast, with an easier approach to town and to parish life in general.

Read our parish guide
  • 3
  • 2
  • 1
Buy this property for £3,849pcm*
*Typical monthly repayment is an estimate for guidance only. Calculation is based on an interest rate of 5.6%, 20% deposit over a 35 year period.

Local Market Team