La Joncquiere

£695,000

Rue des Tamaris, Castel GY5 7BA

  • Local Market
  • Sole Agent
  • Under Offer

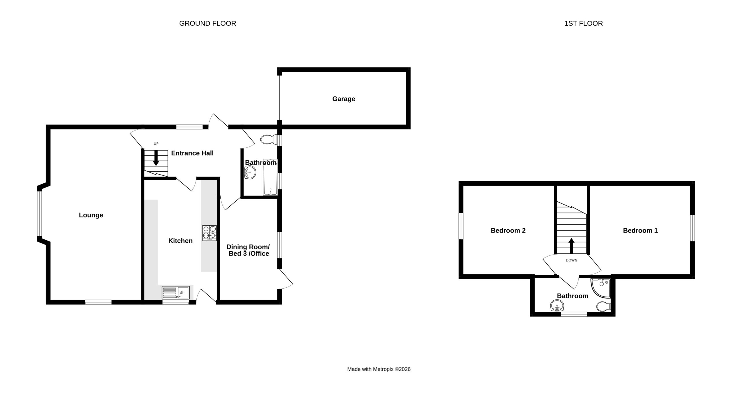
This garage link detached home, built in the 70’s, offers peaceful living on a quiet clos near to the west coast.

The accommodation comprises a kitchen, lounge, bathroom and dining room / office / bedroom 3 on the ground floor with two further bedrooms and a bathroom on the first floor. The property is well presented throughout and presents the opportunity for a new owner to modernise to personal taste should they wish.

Externally, two parking spaces in front of a single garage and pleasant gardens completes the offering.

  • Detached 1970's chalet bungalow
  • Offering up to 3 bedrooms
  • Parking for 2 and garage
  • Quiet clos near west coast
  • Opportunity to modernise
  • Castel
  • Castel Primary, Les Beaucamps High School

Guernsey’s largest parish geographically and family-friendly at heart, with safe sandy beaches and leafy Saumarez Park, home to summer festivals, the National Trust of Guernsey’s Folk Museum and children’s adventure playground.

The near-legendary fish and chips on the sea wall watching stunning sunsets is as good as it sounds, shared by more formal west-coast dining, if preferred.

There are wide tracks of green-belt land, especially at Talbot Valley and nearby Fauxquets Valley, and an eclectic mix of housing styles and densities. This includes clusters of fine old farmhouses, notably in the hamlet of Kings Mills, although modern architecture is increasingly popular, especially when replacing 20th century buildings. The proposed redevelopment of La Grande Mare Golf Club to international status is affirmation of Castel’s inherent appeal.

Read our parish guide
  • 3
  • 2
  • 1
Buy this property for £3,022pcm*
*Typical monthly repayment is an estimate for guidance only. Calculation is based on an interest rate of 5.6%, 20% deposit over a 35 year period.

Local Market Team