5 Grove House

£1,645 pcm

Le Bordage, St Peter Port GY1 1DB

  • Local Market
  • Sole Agent

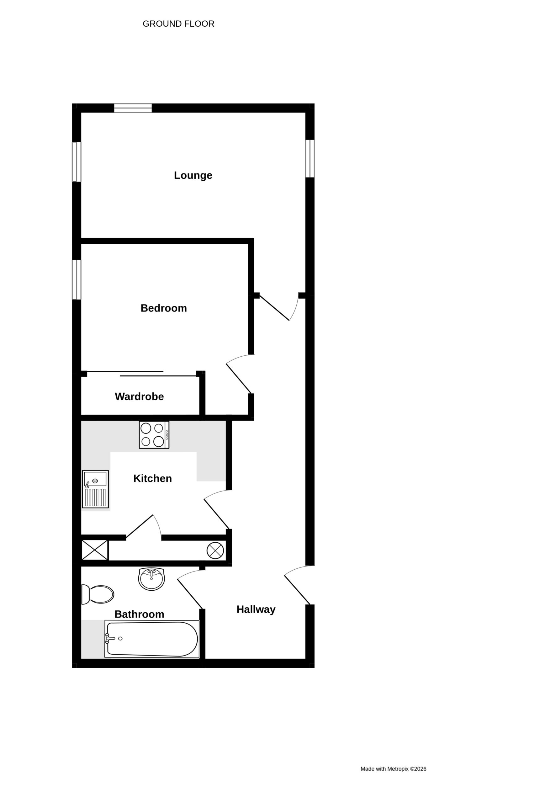
A smart, low-maintenance apartment is located within a purpose-built development in the heart of Town. The property features a good-sized kitchen with modern units and a bright, welcoming lounge.

The apartment also offers a comfortable double bedroom with built-in mirror-fronted wardrobes, making it a practical and stylish home.

  • Smart, low-maintenance apartment within a purpose-built development in the heart of Town.
  • Good-sized kitchen with modern units.
  • Bright and welcoming lounge.
  • Comfortable double bedroom with built-in mirror-fronted wardrobes, offering a practical and stylish home
  • Available from the 22nd May 2026
  • St Peter Port

The picturesque harbour town combines pedestrian shopping and alfresco bars and restaurants. There are fine hotels, St James Concert Hall, Candie Gardens and two exceptional colleges in sight of each other, while Victor Hugo’s Hauteville House is in the older French quarter.

Its thriving square-mile in the business sector includes leading names in finance, insurance and law and Admiral Park is a modern, dockland-style redevelopment of apartments, offices and one of two Waitrose mega-stores in the parish.

St Peter Port still has open green spaces inland and a small park with a popular leisure centre. Old and new houses sit comfortably together but it is the larger Georgian townhouses, spectacular new-builds on high ground, brewery conversions and the Fort George private estate that catch the eye.

Read our parish guide

Rentals Team