Branscombe

£895,000

Les Rocquettes, St Peter Port GY1 1XR

  • Local Market
  • Sole Agent
  • Under Offer

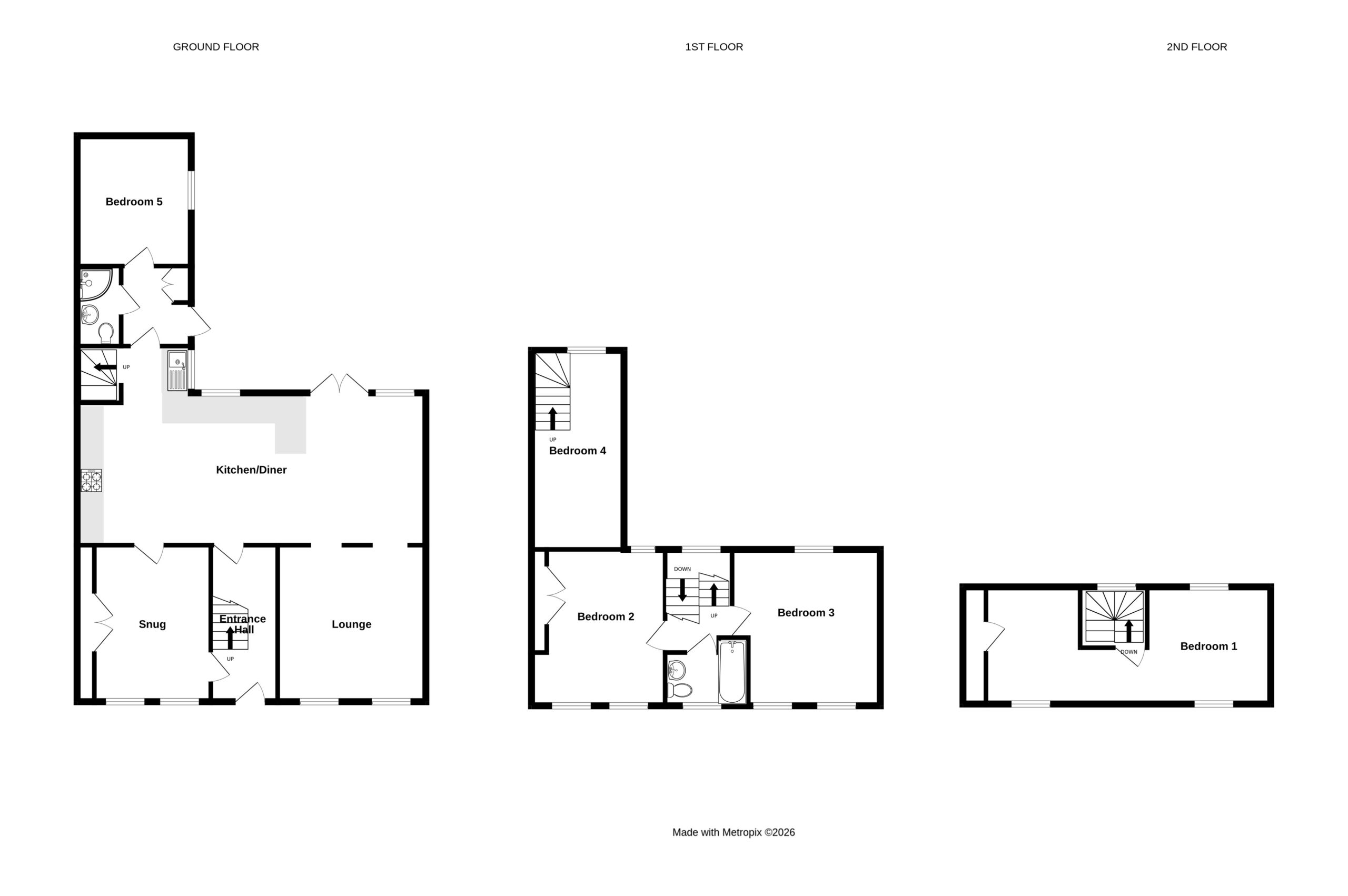
This terraced traditional town home offers surprisingly deceptive accommodation alongside a large garden plus parking for 3, all within a short distance from the main St Peter Port amenities.

The accommodation spans three floors and comprises 5 bedrooms serviced by two bath/shower rooms, a lounge plus separate snug, a large kitchen/diner – a true hub of the home – as well as a walk-in wardrobe and a large walk-in loft space on the second floor.

An excellent property for a large family, viewing is recommended to appreciate the space on offer.

  • Parking for three vehicles
  • Five-bedroom house
  • Private rear garden
  • Large open plan kitchen/diner
  • Recently renovated flat roofs
  • St Peter Port
  • Les Varendes, Vauvert Primary

The picturesque harbour town combines pedestrian shopping and alfresco bars and restaurants. There are fine hotels, St James Concert Hall, Candie Gardens and two exceptional colleges in sight of each other, while Victor Hugo’s Hauteville House is in the older French quarter.

Its thriving square-mile in the business sector includes leading names in finance, insurance and law and Admiral Park is a modern, dockland-style redevelopment of apartments, offices and one of two Waitrose mega-stores in the parish.

St Peter Port still has open green spaces inland and a small park with a popular leisure centre. Old and new houses sit comfortably together but it is the larger Georgian townhouses, spectacular new-builds on high ground, brewery conversions and the Fort George private estate that catch the eye.

Read our parish guide
  • 5
  • 2
  • 3
Buy this property for £3,892pcm*
*Typical monthly repayment is an estimate for guidance only. Calculation is based on an interest rate of 5.6%, 20% deposit over a 35 year period.

Local Market Team