Chaumont

£1,125,000

St Peter Port GY1 1YW

  • Local Market
  • Joint Agent

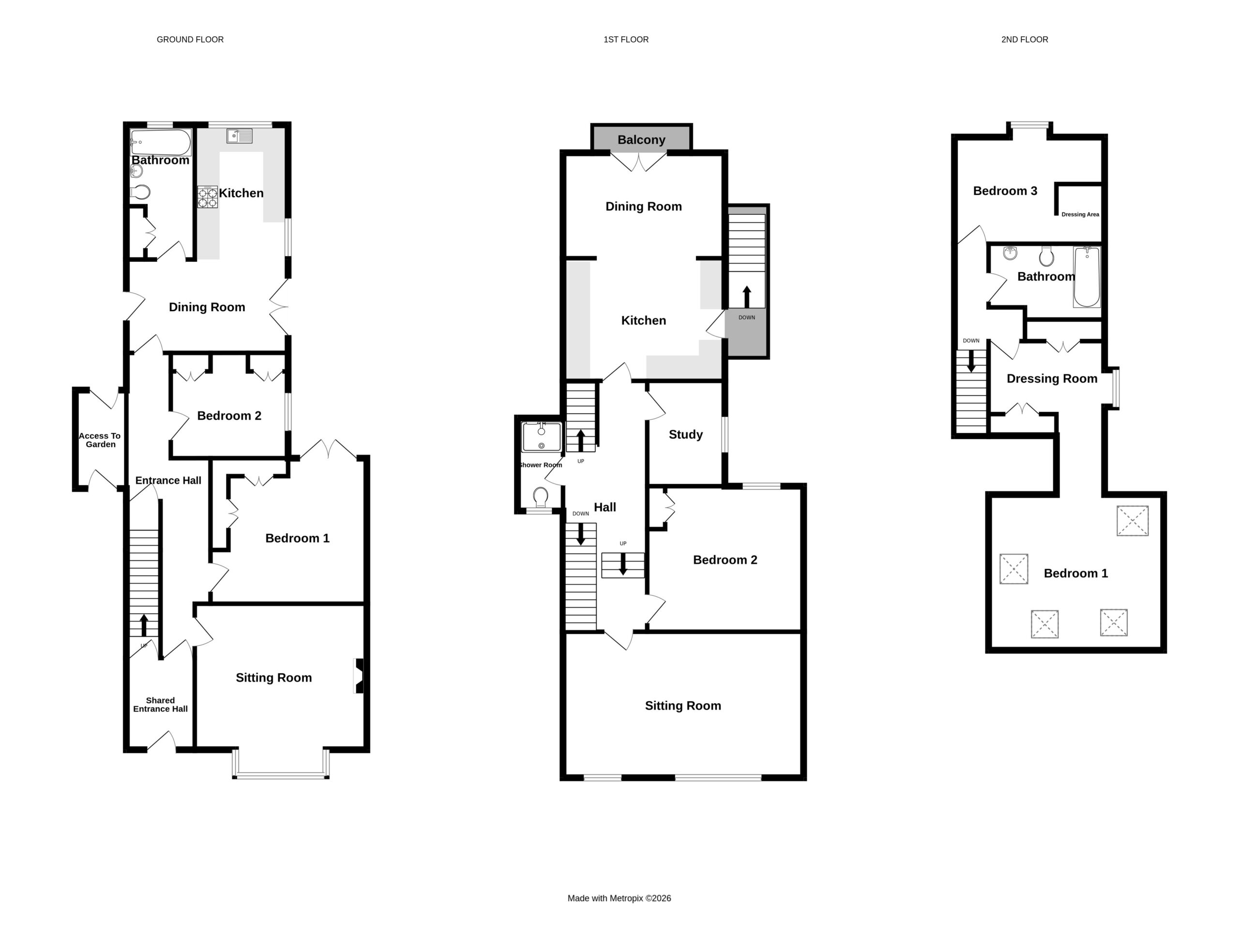
This lovely Edwardian house offers extensive living space of great character, currently laid out as a two bedroom ground floor apartment and large three bedroom duplex above.

Superbly stylish, the property includes a private south facing garden with workshop/garden store and parking for 2/3 vehicles. Located on the edge of St Peter Port, convenient for town schools, shopping and the business centre, this charming home is ideal for multi generational living or can provide an income.

  • Lovely Edwardian property
  • Comprising 2 bed and 3 bed duplex apartments
  • Paved parking for 2/3 cars
  • Lovely south facing gardens with workshop
  • Ideal multi-generational home or can provide an income
  • St Peter Port
  • Les Varendes, Vauvert Primary

The picturesque harbour town combines pedestrian shopping and alfresco bars and restaurants. There are fine hotels, St James Concert Hall, Candie Gardens and two exceptional colleges in sight of each other, while Victor Hugo’s Hauteville House is in the older French quarter.

Its thriving square-mile in the business sector includes leading names in finance, insurance and law and Admiral Park is a modern, dockland-style redevelopment of apartments, offices and one of two Waitrose mega-stores in the parish.

St Peter Port still has open green spaces inland and a small park with a popular leisure centre. Old and new houses sit comfortably together but it is the larger Georgian townhouses, spectacular new-builds on high ground, brewery conversions and the Fort George private estate that catch the eye.

Read our parish guide
  • 5
  • 3
  • 4
Buy this property for £4,892pcm*
*Typical monthly repayment is an estimate for guidance only. Calculation is based on an interest rate of 5.6%, 20% deposit over a 35 year period.

Local Market Team