Kendal

£570,000

Les Landes Estate, Route des Landes, Vale GY3 5JF

  • Local Market
  • Sole Agent

This semi-detached home is located within a peaceful clos, just a short drive from the Bridge.

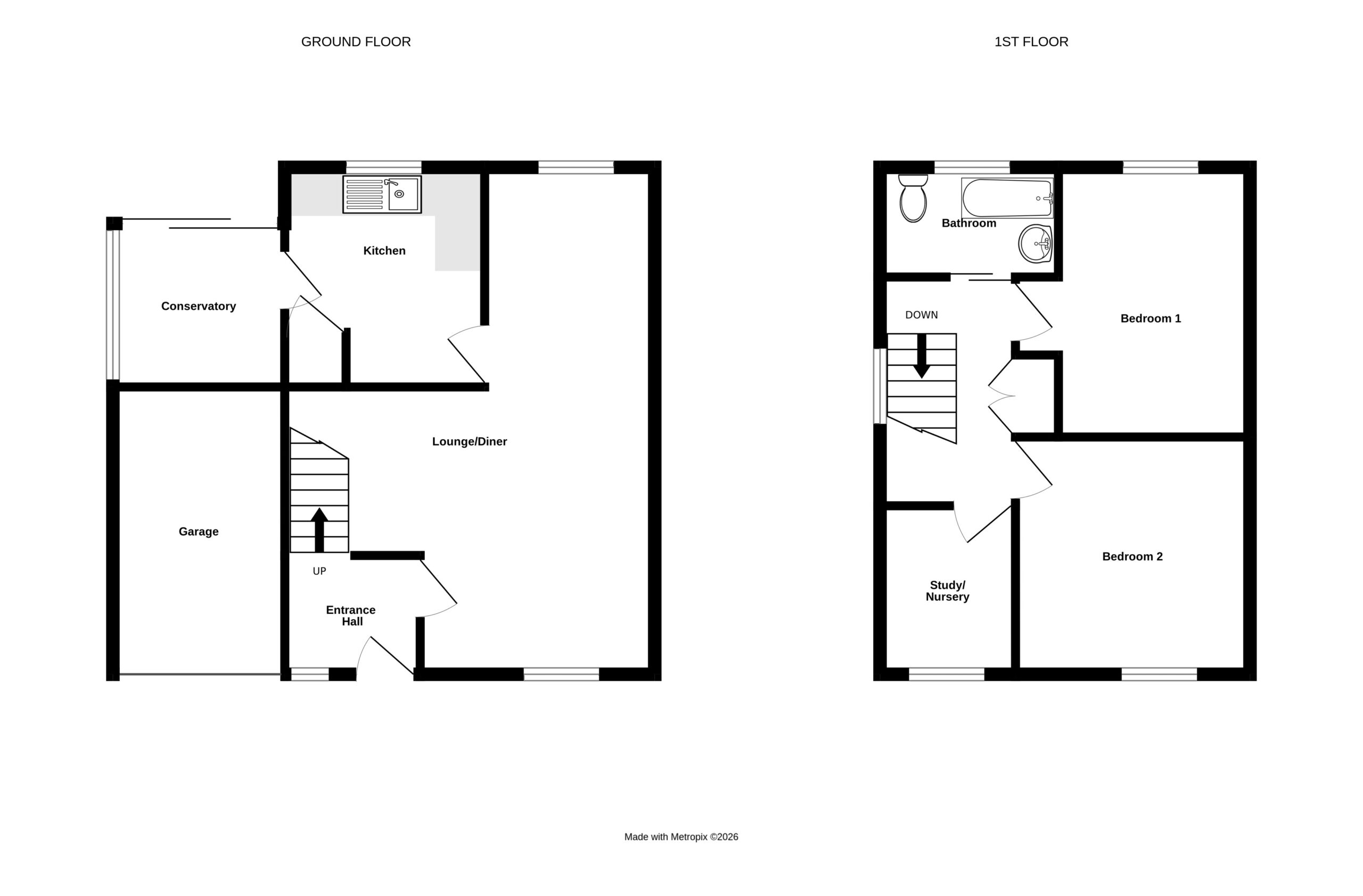
While the property would benefit from a degree of modernisation, it offers an excellent opportunity for a buyer to personalise and add value. The accommodation includes two bedrooms, a study/nursery, bathroom, kitchen, conservatory, and generous dual aspect living/dining space.

Externally, the property features a private turfed rear garden, along with an integral garage and a parking space to the front

  • Garage and parking
  • Quiet and desirable location
  • Private rear garden
  • 2 bedrooms plus study / nursery
  • Large open plan living / dining room
  • Requires modernisation
  • Vale
  • St Sampsons High School, Vale Primary

The ancient names of Le Clos du Valle and Vale Vingtaine de l’Epine remain on record but they are administered as one and jointly called Vale.

The parish offers wide sandy beaches and surfing at Portinfer, two fishing harbours at Grande Harve, a marina at Beaucette and horseshoe harbour at Bordeaux. There is a Royal 18-hole links course within extensive common land that also has a competition-standard rifle range.

Vale and its former abbey found favour with William the Conqueror and his father before him, whose storm-torn ship found safety at L’Ancresse (the anchorage). Wealth and industry have long since been Vale’s bywords, displayed in numerous 17th- and 18th-century farmhouses, pretty cottages and vast Victorian villas in an inland maze of lanes.

Read our parish guide
  • 2
  • 1
  • 2
Buy this property for £2,479pcm*
*Typical monthly repayment is an estimate for guidance only. Calculation is based on an interest rate of 5.6%, 20% deposit over a 35 year period.

Local Market Team