Amherst, St Peter Port GY1 2DN
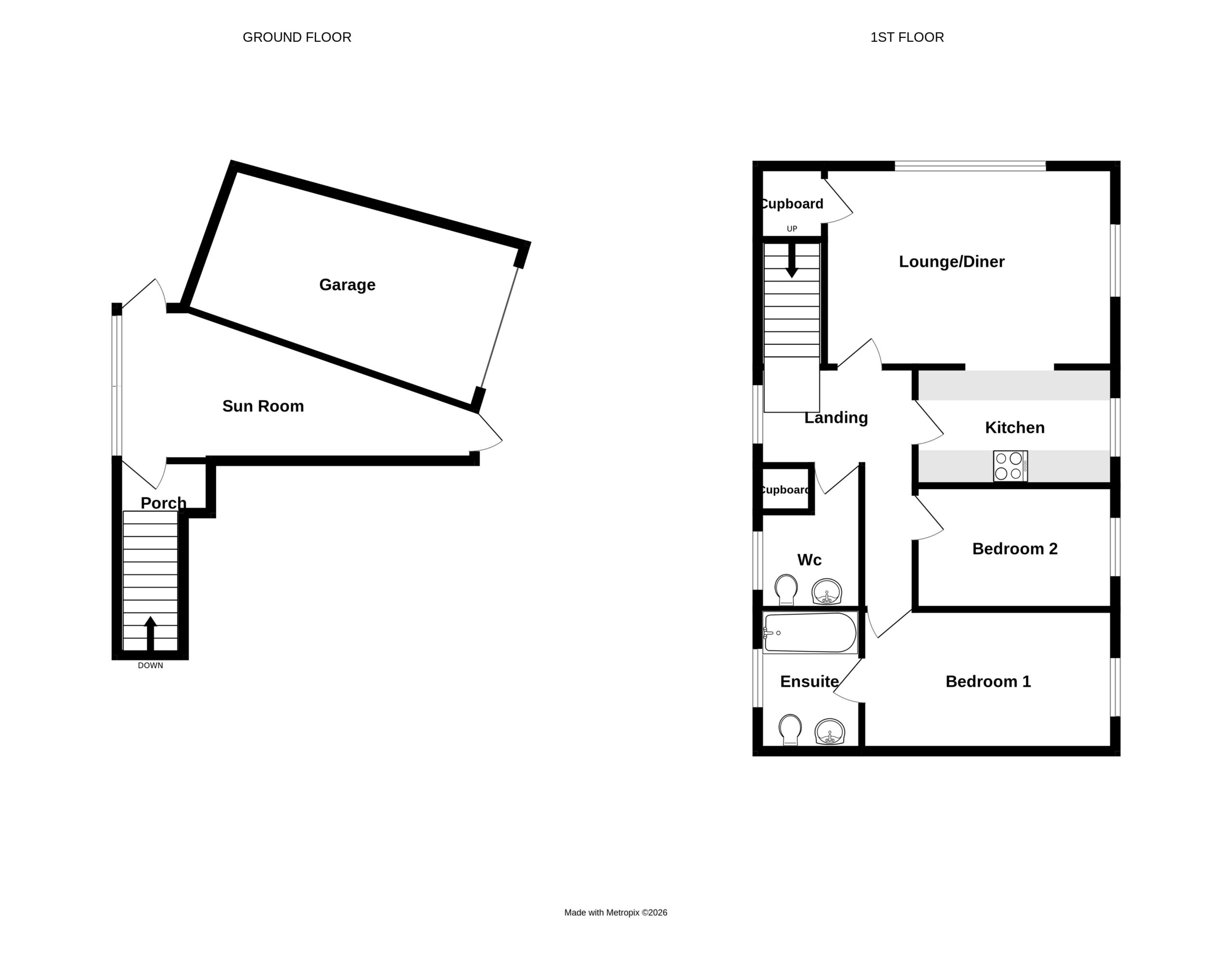
This first-floor two-bedroom apartment with parking, garage and garden is conveniently situated on the outskirts of St Peter Port, opposite Beau Sejour and close to local amenities.
With two bedrooms, light lounge/diner with distant views, kitchen, WC, en-suite and sunroom this unique property is ready for a new owner to add their stamp making it an ideal first time buy or investment.
The picturesque harbour town combines pedestrian shopping and alfresco bars and restaurants. There are fine hotels, St James Concert Hall, Candie Gardens and two exceptional colleges in sight of each other, while Victor Hugo’s Hauteville House is in the older French quarter.
Its thriving square-mile in the business sector includes leading names in finance, insurance and law and Admiral Park is a modern, dockland-style redevelopment of apartments, offices and one of two Waitrose mega-stores in the parish.
St Peter Port still has open green spaces inland and a small park with a popular leisure centre. Old and new houses sit comfortably together but it is the larger Georgian townhouses, spectacular new-builds on high ground, brewery conversions and the Fort George private estate that catch the eye.
Read our parish guide