Nampara

£795,000

Route De Cobo, Castel GY5 7UW

  • Local Market
  • Sole Agent

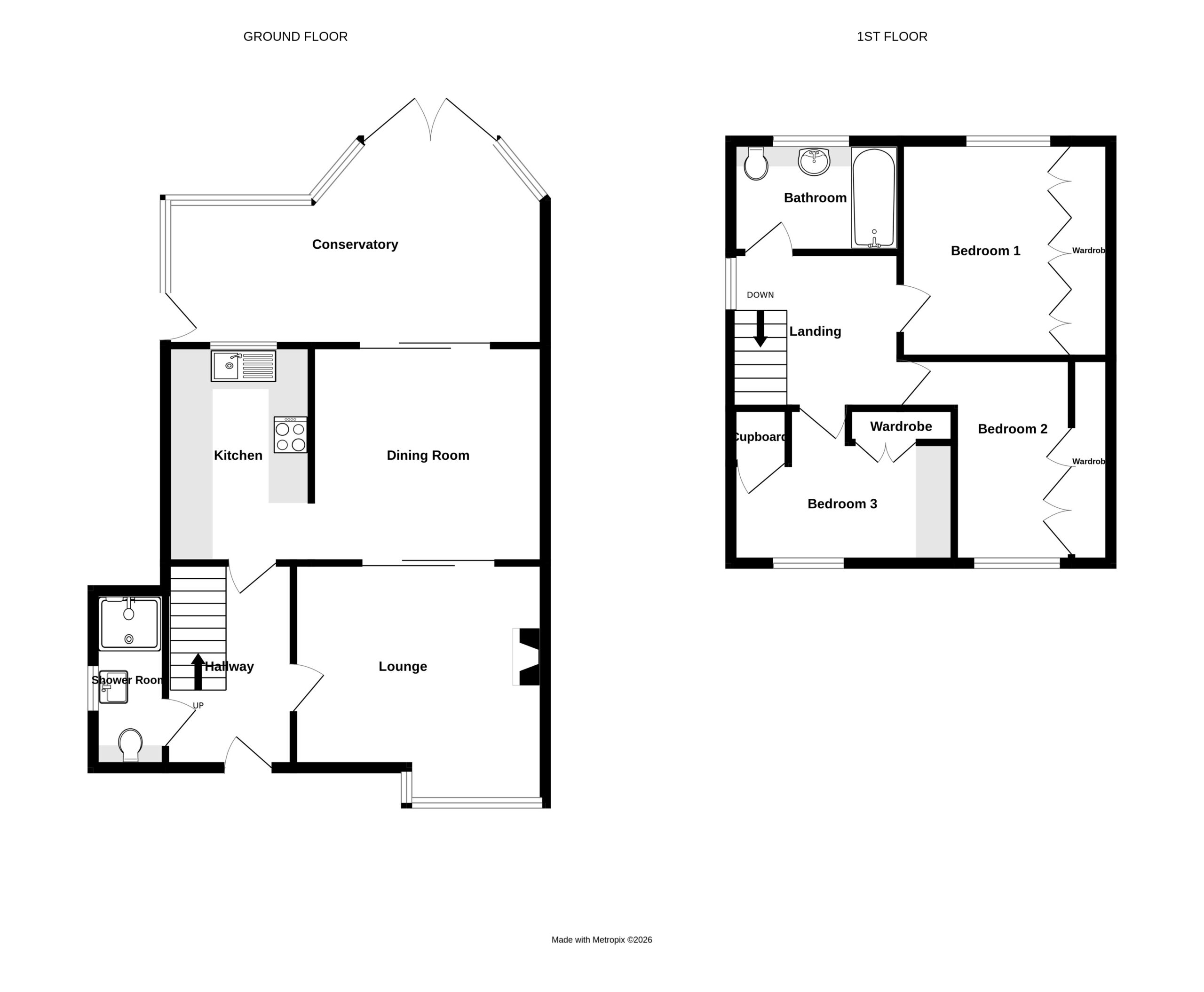
Situated in the highly sought-after parish of Castel, just a short distance from Cobo Bay and a range of local amenities, this beautifully presented three-bedroom semi-detached home offers a flexible and practical layout, perfectly suited to family living.

Immaculately presented throughout and set in a prime location, this home is a must-see to truly appreciate all it has to offer, externally, the property offers ample parking, along with a beautifully maintained south-facing garden featuring a patio area—ideal for both relaxing and entertaining.

  • Well-presented three-bedroom semi-detached home
  • South facing rear garden with views over neighbouring fields
  • Within easy reach of Cobo bay and local amenities
  • Parking for up to 4 - 5 cars
  • Castel
  • Castel Primary, Les Beaucamps High School

Guernsey’s largest parish geographically and family-friendly at heart, with safe sandy beaches and leafy Saumarez Park, home to summer festivals, the National Trust of Guernsey’s Folk Museum and children’s adventure playground.

The near-legendary fish and chips on the sea wall watching stunning sunsets is as good as it sounds, shared by more formal west-coast dining, if preferred.

There are wide tracks of green-belt land, especially at Talbot Valley and nearby Fauxquets Valley, and an eclectic mix of housing styles and densities. This includes clusters of fine old farmhouses, notably in the hamlet of Kings Mills, although modern architecture is increasingly popular, especially when replacing 20th century buildings. The proposed redevelopment of La Grande Mare Golf Club to international status is affirmation of Castel’s inherent appeal.

Read our parish guide
  • 3
  • 2
  • 2
Buy this property for £3,457pcm*
*Typical monthly repayment is an estimate for guidance only. Calculation is based on an interest rate of 5.6%, 20% deposit over a 35 year period.

Local Market Team