Peacehaven

£2,400 pcm

Highland Estate, La Neuve Rue, Castel GY5 7RS

  • Local Market
  • Sole Agent

Situated close to L’Aumone amenities, Peacehaven is a tucked away chalet bungalow on a quiet clos.

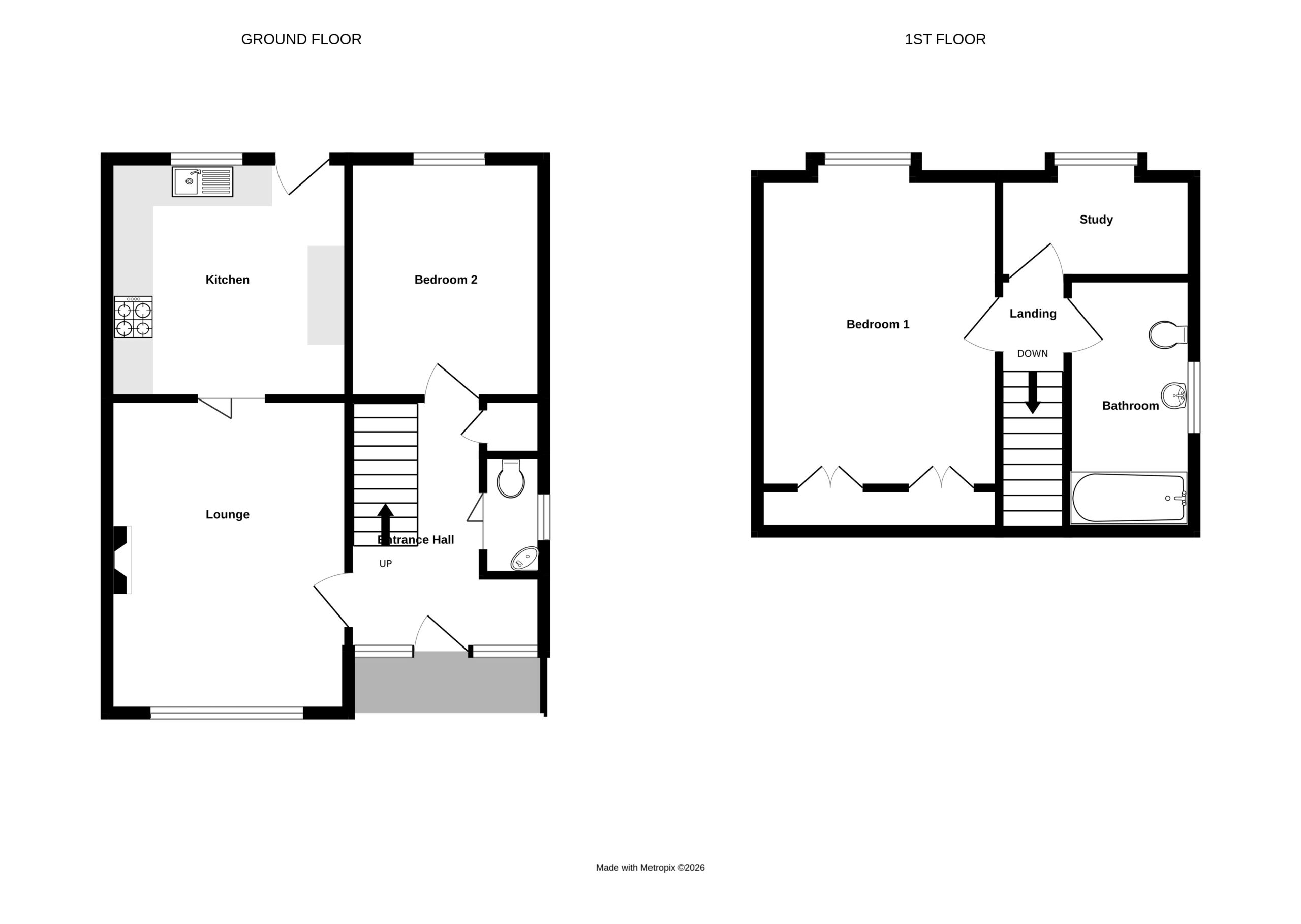
The accommodation is well proportioned and comprises two double bedrooms, plus a study, a family bathroom, and a separate WC.  It also benefits from a newly fitted kitchen and a spacious lounge. Externally, the property offers low-maintenance front and rear gardens, along with a parking for one car. Additional features include newly fitted carpets throughout.

  • Semi-detached chalet bungalow tucked away on a small clos
  • Low maintenance gardens
  • Two double bedrooms and study
  • Allocated parking for one car on the driveway
  • Regret no smokers or sharers
  • Available immediately
  • Castel
  • Castel Primary, Les Beaucamps High School

Guernsey’s largest parish geographically and family-friendly at heart, with safe sandy beaches and leafy Saumarez Park, home to summer festivals, the National Trust of Guernsey’s Folk Museum and children’s adventure playground.

The near-legendary fish and chips on the sea wall watching stunning sunsets is as good as it sounds, shared by more formal west-coast dining, if preferred.

There are wide tracks of green-belt land, especially at Talbot Valley and nearby Fauxquets Valley, and an eclectic mix of housing styles and densities. This includes clusters of fine old farmhouses, notably in the hamlet of Kings Mills, although modern architecture is increasingly popular, especially when replacing 20th century buildings. The proposed redevelopment of La Grande Mare Golf Club to international status is affirmation of Castel’s inherent appeal.

Read our parish guide

Rentals Team